Мазда 6. Снятие и установка электродвигателя ст...
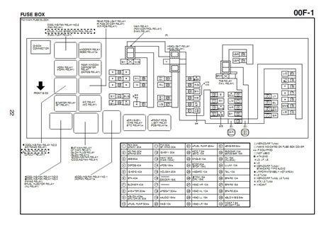
Предохранители Mazda 6 gg и реле со схемами бло...
мазда 6 блок управления двигателем место распол...
коврIK: где находятся предохранители на мазда 6
GJ6A-66-350A Главный блок управления стеклоподъ...
Предохранители мазда 6 gh схема - 86 фото
Где Находится Блок Управления Двигателем Мазда ...
Б/в Кнопка склопідйомника задніх правих дверей ...
Антихром мазда 6 gj своими руками
Схема стеклоподъемников мазда 6 gg - фото
Блок комфорта мазда 6 gh схема - фото
Электрическая схема автомобиля Mazda 6 — схема ...
Снятие и установка обивки передней двери Мазда ...
Блок управления стеклоподъемниками Мазда 6 GG |...
Блок управління кліматом на Mazda 6 розборка ра...
Блок комфорта мазда 6 gh схема подключения
Предохранители Mazda 6 gh и реле с описанием и ...
Блок управления стеклоподъемников Мазда 6 GJ | ...
Mazda 6 gj — предохранители и реле (2013-2021) ...
Копче бутони панел ел.стъкла Мазда 6 Mazda 6 гр...
Схемы блоков предохранителей Мазда 6 GG. Схема ...
Mazda 6 с 2012 года - экстерьер
Стопове, лостчета,бутони, жабка, еърбег за вола...
Схема зеркала мазда 6
Авторазбор vv-auto.ru → Автомобили в разборе → ...