Сопротивление изоляции кабеля
Переход от ВЛ 10кВ на КЛ через ПКУ - YouTube
Трансформаторна підстанція ПЛ 10кВ стан б/в - s...
Презентация на тему: Закрытые распределительные...
Реконструкция подстанции 35/10 кВ Болдинского Р...
Реконструкция и модернизация трансформаторной п...
ПС 110/35/10кВ «Воздвиженка» | АО «АРЭК»
Допустимые нагрузки лэп
Разъединители РЛК, РЛНД 10 кВ 400 А, 630 А
ВМ-1 - ПРОЕКТ-EНЕРГО
Монтаж воздушных линий электропередач 10 кВ в И...
Реконструкция подстанции ЦРП - 10кВ (продолжени...
Реконструкция подстанции ЦРП - 10кВ | Пикабу
Комплектное распределительное устройство напряж...
РВЗ-МИ-10/31,5, dtf, ‘knt[ybrf, x’fp, fhev, lyc...
Поставка остовов 1000кВА 10кВ в количестве 2 шт...
Трансформатор напряжения НАМИТ-10-2
Пример выбора сечения кабеля на напряжение 10 кВ
ОПН 10 кВ, УХЛ1 в наличии - поставка оптом и в ...
Мобильная подстанция 110/10кВ для нужд ПАО «Рос...
Проектирование релейной защиты и автоматики для...
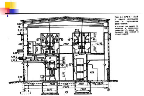
Подстанция 110-10КВ - Чертежи, 3D Модели, Проек...
КРУ 2-10/АЭ - Альтер Электрик
ЛИРА 10.10 - Видеокурсы по ПК Лира 10
Кабель СПЭ 1кв 10кв 35кв 110кв - отличия, марки...
Чертежи | Установка разъединителей РЛК и РЛКВ в...
Проекты кабельных линий 0.4 -10 кВ - ООО "ЭЛПРО...
испытание В.Л.10кВ и КТП повышенным напряжением...
Про LAR-10 "Счетчик" и модернизацию отечественн...
Разъединители 10 кв наружной установки: Разъеди...